Site + Concept

Coal and cedar consumed the majority of a semester and focused on the complex program of a public library. The project was split into 4 stages including site analysis, concept, technical and developed.

The proposed site for the project was crucial at various stages over the last 200 years for the city of Newcastle. The cliftop exposed several coal seems that drew early settlers to establish the city. The site, one of the first mines in the colony, than sparked a wave of mining in the hunter valley. While some settlers where focused on the value of the landscape not seen, others described the area as having rolling grassy hills and valleys full of cedar. Coal and cedar juxtaposed these two possible directions for the site and broader region in its original state. One of agricultural and ecological beauty and the other as a resources hub for fossil fuels.

Render+2.jpg
 
Concept Diagrams.png
Concept Elevation.png

The architecture sought to embellish the duality of the concept by creating a dark black broken box reminiscent of mining screening infrastructure recessed in a valley, juxtaposed to uplifting canopies of timber sitting on rolling grass planes overlooking the coastline, park and city.

 
 
Detail Desction.png
Technical Detail 2.png
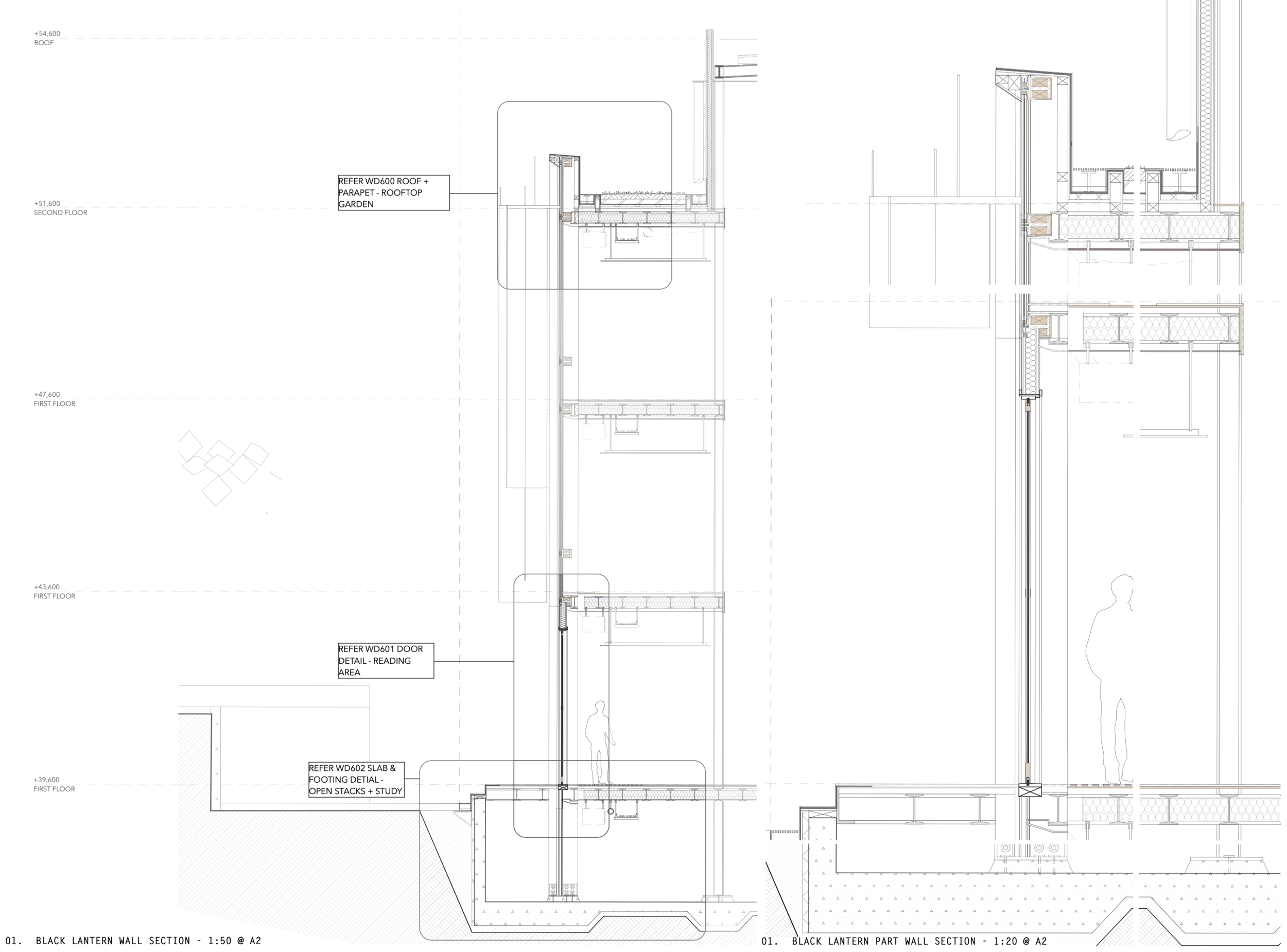
Technical Section.png
Detail Section.png

Technical + Developed

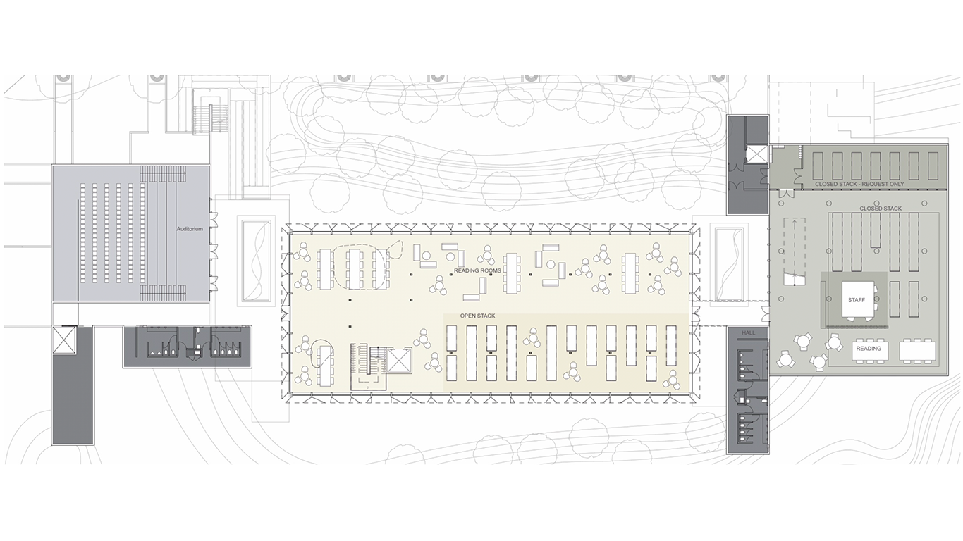
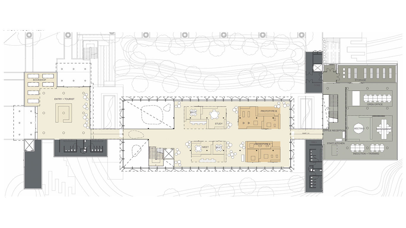
Following the concept submission, elements where refined and reconfigured to better suit the program. Service spaces were clustered together in brick blocks that directed visitors through the entry canopies into the more subdued library spaces housed within the black fragmented box. Opposing architectural treatment and framing of spaces would enable visitors to see the landscape in the different lenses settlers originally saw it, the timbered area looked out over the park and ocean while the black fragmented box pushed guests to look at a dense sunken garden through a dark mesh facade.

The technical submission provided the opportunity to detail the complex canopy structure and steel facade of the central box while the developed submission (shown on next page) focused on refining the planing further and considering in depth how spaces felt to exist within.

 

Planning

Basement Floor Plan.png
Ground Floor Plan.png
First Floor Plan.png

Modeling

Model 1.png
Model 2.jpg
 
Render 1.png